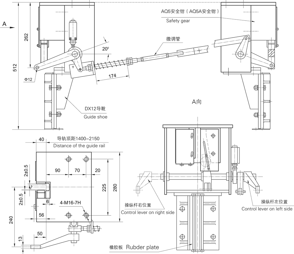
AQZIV安全製動裝(zhuāng)置
1、額定速度:V≤0.63m/s
2、總容許質量:(P+Q)1≤8000kg (14000kg)
3、導軌寬度:16mm
結構特點:
1、帶有操縱機(jī)構(gòu)和導向裝置
2、操縱杆位置:左、右兩種形式(shì)。
注:訂貨(huò)時合同中應注明(míng)導軌頂距及左置或右置。
詳情可(kě)致電“86-316-2018793”谘詢
產品介紹
AQZIV安全製動裝置

AQZIV安全製動裝(zhuāng)置

AQZIV安全製動裝置
 
网站地图 草莓丝瓜香蕉向日葵榴莲绿巨人ios-榴莲视频向日葵视频绿巨人视频-草莓丝瓜向日葵黄瓜榴莲污绿巨人-午夜向日葵视频在线视频观看视频-草莓丝瓜香蕉向日葵榴莲大全解锁版下载-丝瓜草莓榴莲向日葵18岁app下载